Property Features
Brinnington Road, Stockport, SK1 2EX
Contact Agent
Pepper Works, 1 Pepper RoadPepper Works, 1 Pepper Road
Hazel Grove
Stockport
SK7 5DP
Tel: 0161 511 5339
enquiries@property-one.co.uk
About the Property
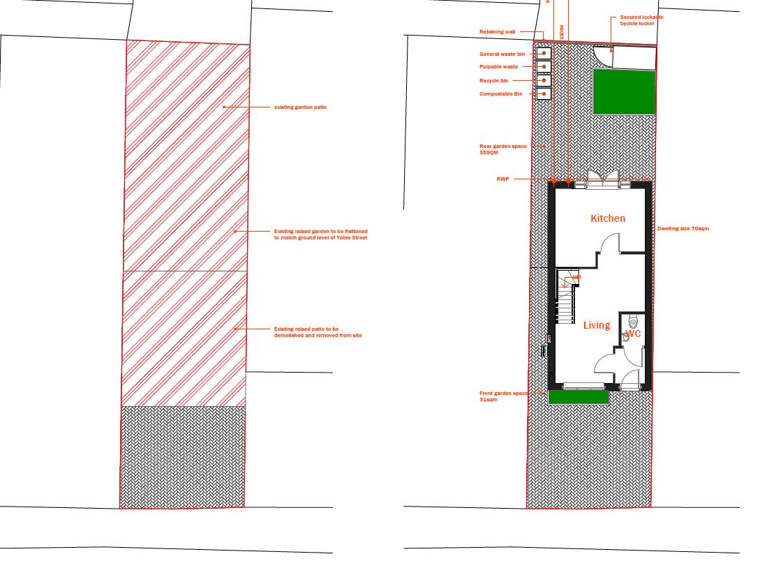
*CALLING ALL DEVELOPERS, BUILDERS AND INVESTORS*
We are delighted to introduce to the market this Fantastic opportunity for those looking to invest in a prime piece of freehold land. The land is sold with planning permission for the construction of a two-bedroom detached home, with all S106 agreements finalised, allowing for a seamless transition into the building phase. This makes it an ideal prospect for developers or individuals seeking to create their dream residence in a highly sought-after area.
Being just a stones throw from Stockport Town Centre, the land offers a fantastic investment for such a project. Furthermore, the excellent transport links via the M60 ensure that commuting to nearby cities is both convenient and efficient, making this location particularly appealing for families and professionals alike.
Contact our office on 0161 511 5339 to register your interest and to arrange an accompanied viewing. Freehold.
- Fantastic Development/ Building Opportunity
- Freehold Title
- Planning Permission granted - S106 finalised
- Plans for a Two Bedroomed Detached
- Extremely Popular Location
- Site spans x sqft









